Established from a comprehensive perspective, FCD (Fortune5 Civil Drafting Solution)

Contact us

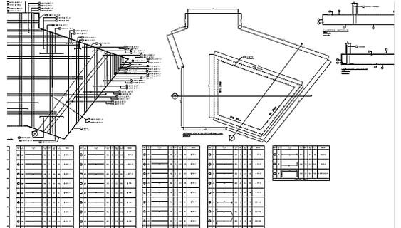
Elevation

About

Building elevations are drawings that show how a building looks from the outside. They help people understand its design and features. These drawings are important for making sure the building follows rules and looks good. They also help architects and builders plan and communicate during construction.